For 2026, Adventurer Manufacturing has relaunched the hard side, triple-slide, dry bath Adventurer Eagle Cap 1165. Here’s the full-story behind the return of a high-end luxury flagship. The 1165 is back!
Few brands in the truck camper marketplace have as storied a history as Eagle Cap.
Originally launched by Intermountain RV in Oregon, in the early 2000s, Eagle Cap was among the first to build 100-percent welded aluminum-frame campers with vacuum-bonded roofs, walls, and floors. Focused on four-season capability and luxury slide-out designs, the brand quickly earned a reputation for innovation and quality. After financial difficulties in 2005, Intermountain RV was sold to the owner of Okanagan RV and continued operating in its original facility until Adventurer Manufacturing acquired the brand in 2010.
Adventurer Manufacturing moved Eagle Cap production to its factory in Yakima, Washington, where the campers were essentially reinvented from the ground up—twice. The first reinvention embraced the original Eagle Cap design philosophy down to the smallest detail, while introducing new fiberglass vendors and enhanced quality control. The results were strong, but the different materials and methods made Eagle Cap production inefficient compared to Adventurer’s proven manufacturing process.
By 2012, the Adventurer team reinvented Eagle Cap once again. Built with Adventurer’s True Composite Construction (TCC) process, the new generation of Eagle Caps featured two-inch aluminum-laminated walls with Azdel composite, closed-cell foam insulation, and an over-rail floor design. By 2013, the brand had moved from relaunch to refinement, with continuous upgrades to components, aesthetics, and residential comfort. From that point forward, Adventurer Manufacturing wasn’t just rebuilding Eagle Cap, they were redefining the premium brand.
In 2022, Adventurer Manufacturing placed Eagle Cap production on indefinite hold to streamline operations amid the pandemic’s supply chain disruptions. Although the company continued warranty and dealer support, the decision paused Eagle Cap’s run as one of the industry’s premier high-end lines.
Until now.
Today, Eagle Cap is back—again—with the return of the popular 1165 triple-slide. Now produced under the unified Adventurer Eagle Cap brand, the 1165 has been updated with improved materials, tighter tolerances, and a more efficient manufacturing process. The model preserves the construction, layout, and features that built Eagle Cap’s reputation for comfort and durability, while reflecting the ongoing commitment of the company and its owners to keep the brand moving forward.
To learn about the 2026 Adventurer Eagle Cap 1165 and the story behind its return, we spoke with Scott Casey, President, and Ryan Clark, Vice President of Sales at Adventurer Manufacturing.
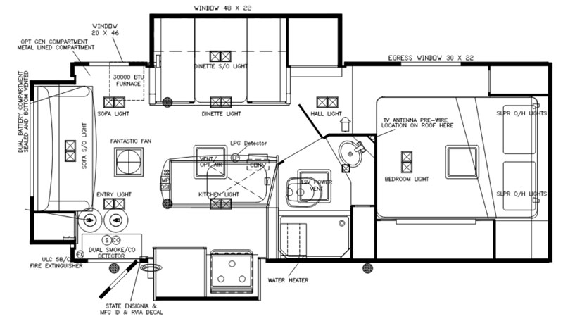
Above: The 2026 Adventurer Eagle Cap 1165 floor plan
The 2026 Adventurer Eagle Cap 1165 is a hard side, triple-slide, dry bath truck camper for long bed trucks. The interior floor length of the Adventurer Eagle Cap 1165 is 11’11″, the interior height is 76”, the width is 102″, and the center of gravity is 61.5″.
The Adventurer Eagle Cap 1165 has a 66 gallon fresh tank, a 6 gallon water heater, a 41 gallon grey tank, and a 41 gallon black tank. It has two 30-pound propane tanks standard.
Adventurer is reporting the base weight of the Adventurer Eagle Cap 1165 is 4,917 pounds. The base MSRP for the 2026 Adventurer Eagle Cap 1165 is $91,730.
Click here for an Adventurer Eagle Cap 1165 brochure.

Above: Ryan Clark (left) and Scott Casey (right)
Scott, this is the first time we’ve had you in Truck Camper Magazine. Tell us about your background and how you came to work for Adventurer Manufacturing.
Scott: I am personal friends with our VP of Operations, Claus Schroeder. We worked together at a large German company about nine years ago. Several years ago, Claus asked if I’d be interested in meeting David Epp, our CEO, to have a business conversation. So I met with David, and we became friends before we worked together.
Historically, I’m a serial entrepreneur. I had my own sales and marketing company for twenty years, focused on the cleaning and chemical industry. Then I was the executive vice president at Karcher, which is a dominant force in that industry. That business had a similar model to what we have in the RV industry. We made products that we sold primarily through distributors and dealer partners. In addition, I was also a partner in a motorcycle dealership with multiple brands, contracts, and flooring (floor plan financing). Again, similar to the RV space.
On a personal note, I’m very big into dirt bike riding, road bike riding, snowmobiles, snow biking, boating, and being outside with my family every chance I can get. I’ve had a number of campers and RVs throughout my life. So this market is something I was passionate about personally.

Above: The main living area in the Adventurer Eagle Cap 1165
Ryan, we also haven’t introduced you to our readers. What’s your background and how did you come to work for Adventurer?
Ryan: Like Scott, I’m a serial entrepreneur. I’ve been very fortunate to spend almost twenty years in the outdoor industry and recreation space, working for top-tier brands as a sales and marketing consultant and a brand program developer. I have also launched a couple of companies, including high-end outdoor apparel to green outdoor product manufacturing businesses. In those capacities, I worked with the large REIs of the world, to the small mom-and-pop kayak shops.
Then, in a strange twist of fate, I ended up in the tech space working in industrial and robotic automation. Soon after I was hired by Scott Casey at a large German company called Rittal, the world’s largest electrical enclosure manufacturer. When Scott announced at Rittal that he was moving to Adventurer Manufacturing, I privately messaged Scott and said, “You’ve got to be kidding me. I’ve long thought how fun it would be to work for that company.” I was very envious.
When Scott made the move, I reexamined what I was doing, saw there was an opening at Adventurer, and made the move as well.
Scott: I want to add that Ryan worked for me as VP at Rittal. I know him and I trust him. That’s been very beneficial at Adventurer Manufacturing.
Before we talk about the return of the Adventurer Eagle Cap 1165, tell us why this popular brand was cancelled in 2022.
Ryan: It’s not a romantic story. When Covid hit, supply chains collapsed and employee hours became unpredictable. As a then 51-year-old company, we had to take a hard look at how to not only survive but also come out stronger. That meant making difficult decisions, including streamlining operations, improving efficiency, and focusing on the customer experience that our dealers and consumers expect and deserve.
Eagle Cap was our most complex line. The 1165 alone has over 1,200 parts and more than 100 production hours per camper. Building those units during a time of severe supply-chain disruption wasn’t sustainable without risking quality or delivery.
There’s a perception that Eagle Cap was cancelled in favor of the Scout line. Is that accurate?
Scott: Not at all. Scout was in development long before Covid hit, and launched in early 2020. In contrast to the complex Eagle Cap line, Scout required significantly fewer parts, resulting in a cleaner supply chain. Scout was also designed for ease of production.
Closing Eagle Cap wasn’t about replacing it with Scout. It was about stabilizing Adventurer Manufacturing during a particularly challenging moment in the global economy, and focusing on what we could build consistently, reliably, and well.

Above: The 2026 Adventurer Eagle Cap 1165 is shown on a Ford F-450 for demonstration purposes only. For proper truck and camper matching, read “How To Match a Truck and Truck Camper”.
Why is the Adventurer Eagle Cap 1165 being brought back just three years later?
Scott: When I joined the company, we didn’t have a strong sales leadership team, so I hit the road to meet our dealer partners in person. I’ve always believed the customer has more to say than we do.
At every stop—from RnR RV in Spokane to Princess Craft in Round Rock, Texas—I asked one question: “What can we do better?” The answer was clear and consistent: “Bring back Eagle Cap.” We listened, and we acted. Looking back, discontinuing Eagle Cap wasn’t the right move, but bringing it back absolutely was.
What’s behind the decision to integrate the Eagle Cap name under the Adventurer brand?
Ryan: The decision to bring Eagle Cap back under the Adventurer brand was all about efficiency and sustainability. Maintaining two separate brands with overlapping processes wasn’t practical long-term—it created duplication and drove up costs. By integrating Eagle Cap into Adventurer, we can streamline production, strengthen quality control, and deliver a better overall experience for our dealers and customers.
At the same time, we wanted to preserve what makes Eagle Cap special. That’s why the Eagle Cap name remains proudly on the nose cap—it honors the brand’s heritage while benefiting from the strength, systems, and stability of Adventurer Manufacturing.

Why has only the Eagle Cap 1165 model been brought back?
Scott: When we looked at the numbers, the 1165 represented more than 70 percent of all Eagle Cap sales. That made the path forward clear. We would focus on the model customers wanted most. With our engineering and manufacturing teams, we reestablished the 1165 supply chain and had production running smoothly again within 90 days.
If the 1165 performs well in the marketplace, might we see the Eagle Cap 1200, 1160, and 811 brought back in the future?
Scott: Rebuilding the supply chain and production systems for such a complex product isn’t easy, so for now, the focus is on the 1165 model. The plan is to stick with the 1165 for at least a year, evaluate its performance, and then decide what the next generation of Eagle Cap products might look like.

What has been changed for the 2026 Adventurer Eagle Cap 1165?
Ryan: As already mentioned, the Eagle Cap 1165 is an incredibly complex camper with roughly 1,200 individual parts. For 2026, a significant number of those components were upgraded to parts we can reliably source in 2025. That alone represents a major improvement in consistency, quality, and serviceability.
For 2026, we’ve switched to Lippert entryway steps. That’s a big step forward in function and reliability. Because Adventurer Manufacturing already works with Lippert across other product lines, we were able to leverage that partnership for Eagle Cap.
Beyond components, the biggest evolution is in how the 1165 is built. The refinement of our manufacturing process through our APOC (Adventurer Production Optimization and Control) facility has greatly increased the precision and consistency of every unit we build. From panel lamination to final fit and finish, the 2026 Eagle Cap 1165 benefits from tighter tolerances, stronger materials, and higher overall construction standards compared to 2022.
In short, the 1165 isn’t just a return of Eagle Cap. It’s a re-engineered, more efficient, and more dependable version built to today’s highest standards.
“The 1165 isn’t just a return of Eagle Cap. It’s a re-engineered, more efficient, and more dependable version built to today’s highest standards.”
Have there been any changes to how the Adventurer Eagle Cap is constructed?
Ryan: We’re using the same proven formula that made the Adventurer Eagle Cap 1165 a best-selling triple-slide on the market. For starters, the Eagle Cap 1165 is built on a fully welded aluminum superstructure. We use aircraft-grade aluminum tubing throughout the frame—walls, roof, and floor—all precision welded and bolted together for strength and rigidity.
From there, each wall, roof, and floor panel is a TCC® laminated assembly with high-density block foam insulation bonded between the inner and outer layers. The exterior is high-gloss fiberglass over an aluminum frame, and the roof is a one-piece, walk-on TPO membrane.
The 1165’s floor is also aluminum framed and fully laminated for durability and R22 insulation while the walls come in around R-13 and the roof up to R-19. All of the plumbing and holding tanks are enclosed in a heated basement.
Everything is sealed with a multi-step process and finished with front and rear molded fiberglass caps for strength, aerodynamics, and a premium look. In short, the 1165 is an all-aluminum, vacuum-bonded, four-season truck camper designed to stay strong, quiet, and comfortable no matter where you take it.

Above: The 2026 Adventurer Eagle Cap 1165 uses Schwintek slide mechanisms
What slide-out mechanisms are employed in the Adventurer Eagle Cap 1165 triple-slide?
Ryan: For the 2026 Eagle Cap 1165, we stayed with the Schwintek slide-out system, and for good reason. It’s been a reliable, high-performing choice that complements the way we build our campers. The system keeps weight down, operates smoothly, and lets us achieve the large, open floor plans our customers love.
What really sets the Schwintek apart is its flexibility in design. Because it isn’t tied to a floor-mounted mechanism and uses less power, our engineers have more freedom to optimize each slide for balance, structure, and interior layout. It’s an efficient, proven system that fits perfectly with Eagle Cap’s premium, four-season build and our commitment to continuous improvement.

Have the interior materials and finishes been updated?
Ryan: The interior materials and finishes of the 2026 Eagle Cap 1165 have been thoughtfully updated to reflect both durability and modern style.

The 1165 features industrial-grade vinyl flooring designed to stand up to years of real-world adventure, paired with residential-style face-frame cabinetry for a true home-like feel. The cabinet doors are solid hardwood, and all drawers use magnetic catches for a cleaner, more secure fit and finish. The countertops are thermoformed laminate; lightweight, seamless, and exceptionally durable.

The seating features automotive-style stitched cushions with flame-treated, easy-to-clean upholstery that offers both comfort and longevity. For 2026, customers can choose between two interior decors: Steel Desert SL, featuring dark grey simulated leather for a sleek, contemporary look, and Toffee Latte SL, which combines chamois and taupe tones for a warm, inviting atmosphere.

Above: The mid dry bath in the 2026 Adventurer Eagle Cap 1165
Together, these materials and finishes elevate the 1165’s interior, blending residential sophistication with the rugged durability Eagle Cap owners expect.

What’s the standard battery setup? What’s the battery type and standard amp-hours?
Ryan: At this level of camper, we know our customers value choice and control. Every owner has a preferred power setup, whether that’s traditional AGM batteries, high-capacity lithium, or even a custom solar-integrated system. Rather than limiting that flexibility, we’ve designed the 2026 Adventurer Eagle Cap 1165 to let customers configure the power system that best fits their needs and travel style.
For that reason, batteries are not included. Instead, the 1165 provides a dedicated compartment sized for two Group 31 AGM batteries or two lithium batteries of similar dimensions, giving owners the freedom to build the energy system they truly want. It’s a more personalized, future-ready approach to off-grid power.
How much solar is standard, and what’s the maximum optional capacity?
Ryan: The 1165 is solar-ready from the factory, pre-wired for an easy plug-and-play installation. We also offer an optional 300-watt solar package directly from the factory for those who want a complete, turn-key system right out of the gate.
This approach gives customers the best of both worlds—the freedom to customize their energy system or the convenience of a ready-to-go solar package installed by Adventurer Manufacturing.

What windows are standard on the 2026 Adventurer Eagle Cap 1165?
Ryan: The 2026 Eagle Cap 1165 features frameless, four-season, dark-tint True Thermal Pane windows, which are a big part of what makes this camper so comfortable year-round. They’re gas-filled for insulation, helping keep the interior cooler in summer and warmer in winter, and the frameless design gives the camper that clean, modern automotive look.
Every window includes privacy night shades, so owners can completely block light and maintain privacy when they want it. In the kitchen, we install blinds to meet safety and code requirements. Together, these features deliver both function and refinement.

What size are the propane tanks in the 2026 Adventurer Eagle Cap 1165?
Ryan: There are two 30-pound propane tanks.
What are the fresh, grey, and black tank capacities on the 2026 Adventurer Eagle Cap 1165?
Ryan: There’s 66 gallons of fresh, 41 gallons of grey, and 41 gallons of black tank capacity in the 1165.

Above: Adventurer weighs every camper that comes off the production line on this scale
What’s the base dry weight of the 2026 Adventurer Eagle Cap 1165?
Ryan: The base dry weight of the 1165 is 4,917 pounds. Every truck camper that rolls off the line at Adventurer Manufacturing is weighed on our in-house certified scales. A weight sticker is then placed inside a cabinet door, showing the exact weight of your camper as built with all the options you ordered.

Above: The camper above with options came in with a dry weight of 5,470 pounds.
Where is the center of gravity on the 2026 Adventurer Eagle Cap 1165?
Ryan: The center of gravity is at 61.5 inches from the front wall.
Based on the dry and potential wet weight, what is Adventurer Manufacturing’s official recommendation on truck matching for the 2026 Adventurer Eagle Cap 1165?
Ryan: That’s an excellent question, and one we take very seriously. The Eagle Cap 1165 is a large, triple-slide luxury truck camper. The dry weight without options is 4,917 pounds and closer to 5,500 pounds with every option (see scale photos above). Matching the 1165 with the right truck isn’t just about performance; it’s about maintaining proper weight balance, braking, and overall safety.
Because of its size and center of gravity, the 1165 is can be a challenging match for a one-ton dually, unless every rating—including payload, center-of-gravity, rear axle, and tire capacity—is verified and within limits. Not all one-ton duallies are created equal. Heavy options like diesel engines, four-wheel drive, and luxury trims can significantly reduce payload capacity.
For that reason, we recommend a Class 5 chassis cab, such as the Ford F-550, Ram 5500, or Chevrolet Silverado 5500 HD. Class 5 trucks provide additional frame strength, payload capacity, and braking performance for maximum safety and performance.
At Adventurer Manufacturing, we always encourage customers to verify weights, consult with knowledgeable dealers, and ensure proper truck and camper fitment. The 1165 is an incredible camper and it must be matched with the right truck to deliver the experience it was designed for: comfort, confidence, and control on every mile.
“The 1165 is an incredible camper and it must be matched with the right truck to deliver the experience it was designed for; comfort, confidence, and control on every mile.”
What’s the warranty for the 2026 Adventurer Eagle Cap 1165?
Ryan: There’s a three-year structural warranty on the 1165. The appliances have their own warranties. The roof is a one-piece TPO walk-on roof with a 12 year warranty.
What’s the 2026 Adventurer Eagle Cap 1165 MSRP for the base and fully-loaded versions?
Ryan: The MSRP is $91,730. If you add every option, it would be $106,432. You can contact one of our select dealers to find an accurate price on the specific model available near you.
When will the 2026 Adventurer Eagle Cap 1165 be available?
Ryan: The 2026 Adventurer Eagle Cap 1165 is available at Adventurer dealers now. You can use our Find a Dealer map to find the nearest one to you.

Is there anything else you’d like to add about the 2026 Adventurer Eagle Cap 1165, or any other news or teasers from Adventurer Manufacturing?
Scott: Listening to our customers has always guided everything we do, and the 2026 Eagle Cap 1165 is a perfect example of that philosophy in action. This model represents the very best of what Adventurer Manufacturing is capable of; our craftsmanship, our engineering, and our commitment to continuous improvement.
The return of the 1165 wasn’t a corporate decision; it was driven by consumer demand. Our customers and dealers asked for it, and we took the time to bring it back the right way. The 1165 is stronger, smarter, and more refined than ever. We’re incredibly proud of how this flagship camper showcases the quality and capability of our entire team.
To see Adventurer MFG’s promotional video of the 1165, click here. For more information about the 2026 Adventurer Eagle Cap 1165, visit their website.
Click here for a free Adventurer Eagle Cap 1165 brochure.
